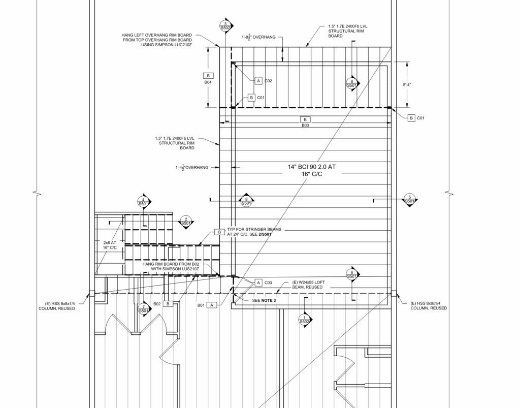
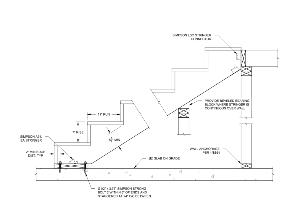
Commercial Tenant ImprovementImpact EngineersMay 16, 2025Commercial Interior structural buildout of tenant space for new occupancy inside an existing commercial building in Kennewick WA. New space features extension to interior loft area, and new standalone 2-story section.