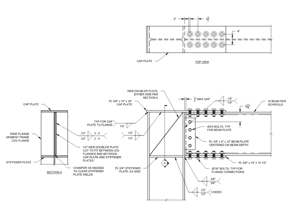
Retail PlazaImpact EngineersMay 21, 2025Commercial Commercial building with large aspect ratio of nearly 8:1 located in Pasco WA. Featuring large moment frame, covered entries, and steel awning assemblies.