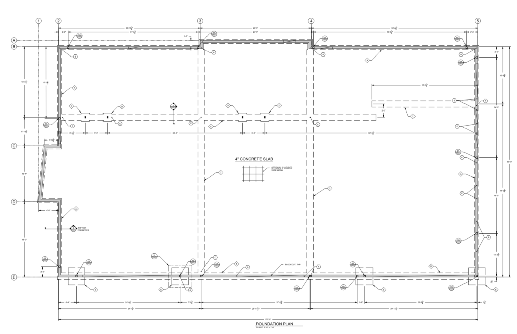
Bombshellz PlazaImpact EngineersJune 5, 2025Commercial Commercial plaza building in Richland WA featuring unique angled parapets and awnings, Roof jogs accommodate varying ceiling heights inside.