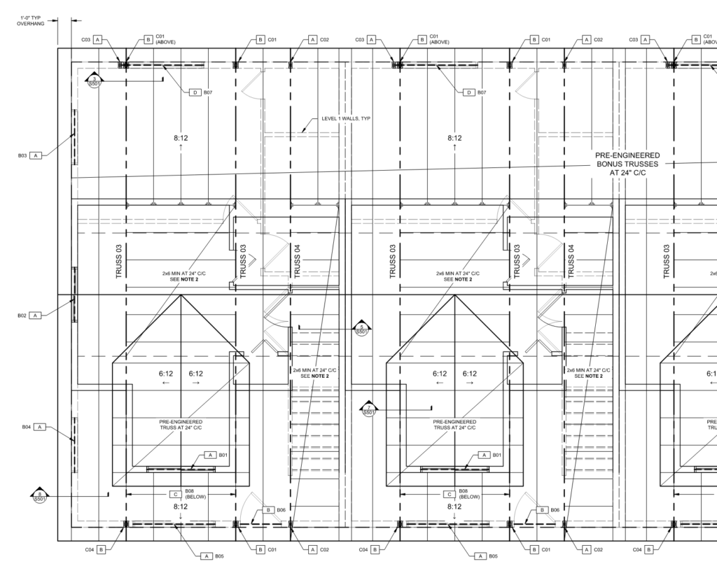
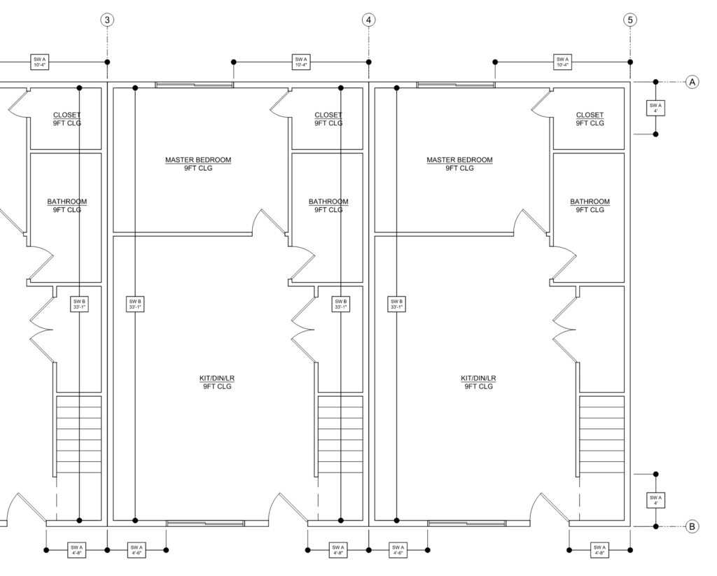
TownhousesImpact EngineersJuly 17, 2025Commercial Connected condo structure in Kennewick WA, featuring stepped foundation along sloped lot, second story bonus space, and 4 units.